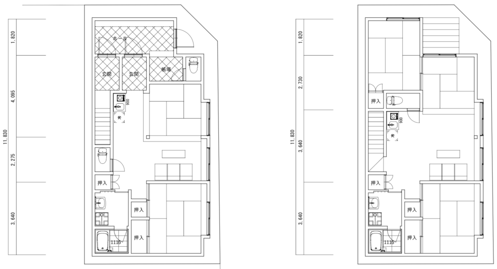
以下に、一軒家で合法民泊をする際の推奨の間取りの事例をご紹介します。

推奨間取りの4つの特徴を以下に列挙します。
- 一階と二階の玄関が分かれて、二世帯です。
- 二世帯のどちらにも最低限の水回り設備が有り、合法民泊を廃業しても2世帯に賃貸が可能です。
- 合法民泊に泊まるグループを想定する為、一世帯当たり、4人の最大定員を想定すると良いでしょう。故に、1LDKや2DK以上を推奨します。
- 共有スペースは可能な限り少なくしましょう。共有スペースが広かったり、共有スペースにトイレが有ると、毎日掃除する必要が有る為、避けましょう。
今回は以上です。
